1
/
of
10
CASAS DE MADERA BÁLTICAS
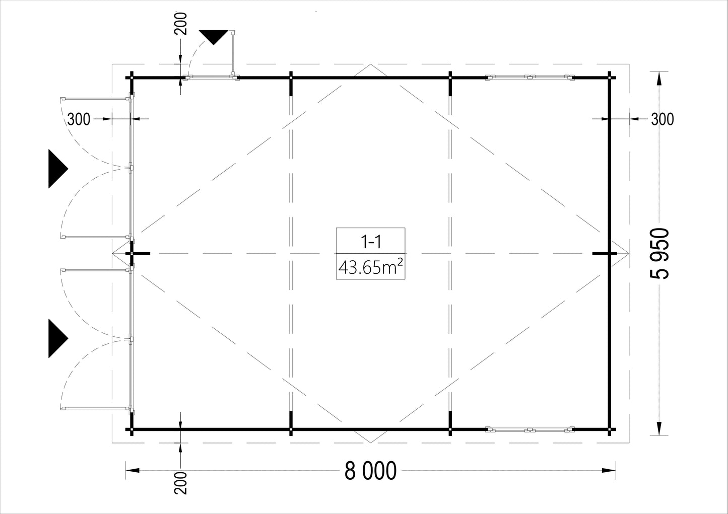
DOUBLE GARAGE 8.00 X 5.95
DOUBLE GARAGE 8.00 X 5.95
Regular price
€12.990,00 EUR
Regular price
Sale price
€12.990,00 EUR
Unit price
/
per
Tax included.
The price includes : walls, windows, roof, roof shingles, materials needed to provide exterior protection, hardware, shipping (mainland Spain only), and VAT.
Optional extras : interior treatment, shutters, storm doors, PVC doors and windows, blinds for PVC doors and windows, sandwich panel roof, air chamber in the roof (double roof), floor insulation, extra height.
Characteristics:
- 47 m2
- Garage door not included
Compartir









