1
/
of
11
CASAS DE MADERA BÁLTICAS
MILÁN HOUSE
MILÁN HOUSE
Regular price
€15.990,00 EUR
Regular price
Sale price
€15.990,00 EUR
Unit price
/
per
Tax included.
"In each beam of MILÁN, wood is the signature of exclusivity, transforming the home into a livable masterpiece."
Model available in all wall thicknesses.
Characteristics:
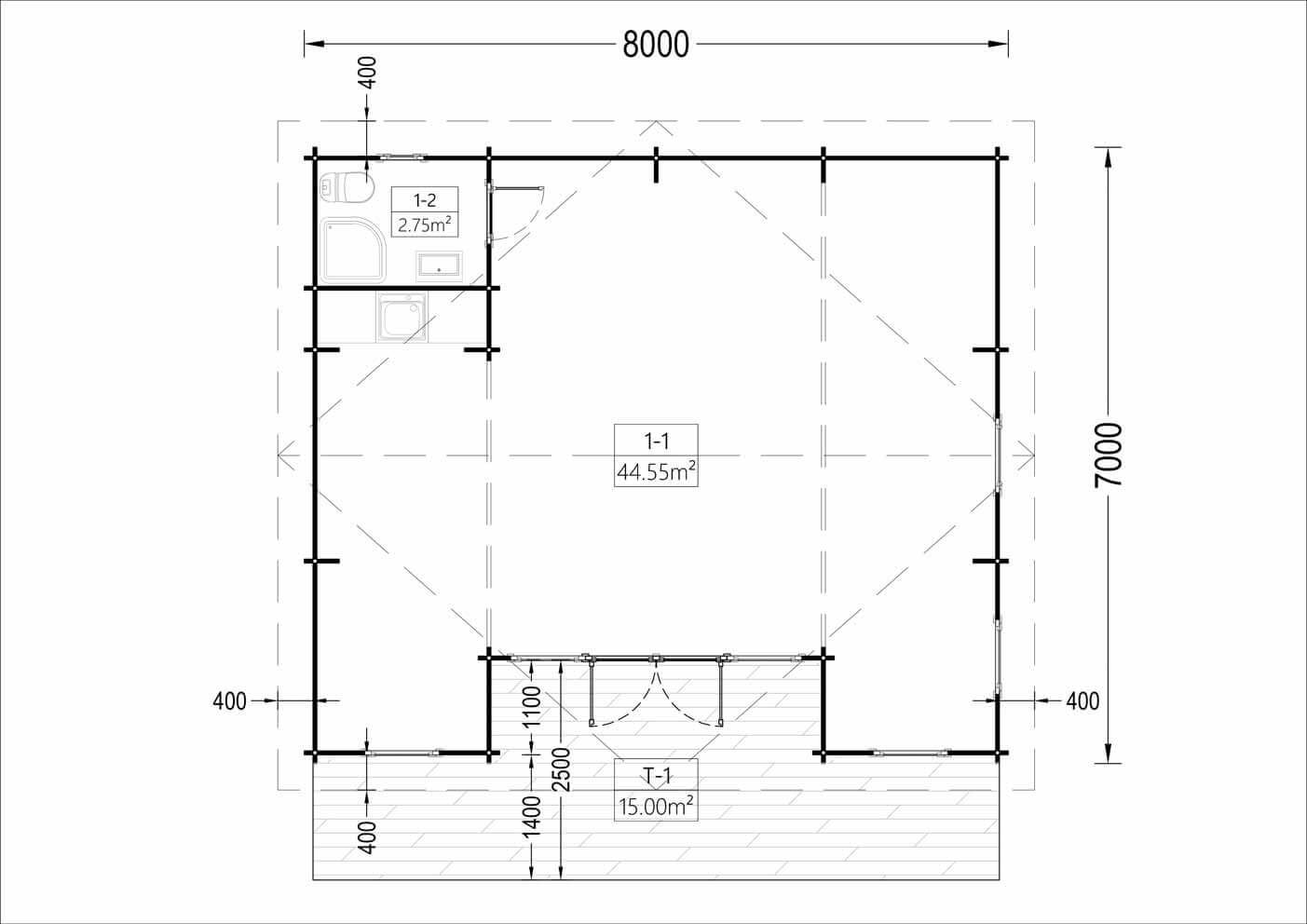
. 56 m2
. 1 Bedrooms
. 1 bathroom
Compartir









