1
/
of
11
CASAS DE MADERA BÁLTICAS
ELVIS HOUSE
ELVIS HOUSE
Regular price
€23.990,00 EUR
Regular price
Sale price
€23.990,00 EUR
Unit price
/
per
Tax included.
€ The price includes : floor, walls, doors, windows, roof, roof shingles, necessary materials for exterior protection, hardware, transport (mainland Spain only) and VAT.
Optional extras : interior treatment, shutters, storm doors, PVC doors and windows, blinds for PVC doors and windows, sandwich panel roof, air chamber in the roof (double roof), floor insulation, extra height.
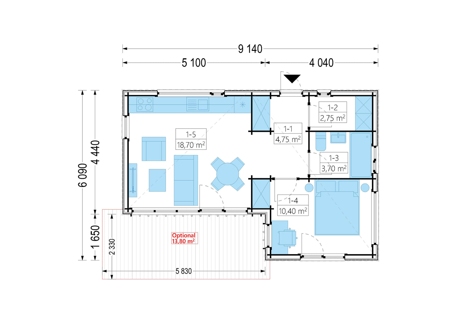
Characteristics:
- Total area: 47 m²
- 1 Bedroom
- 1 Bathroom
- 1 Kitchen
- Optional terrace not included
Compartir










