CASAS DE MADERA BÁLTICAS
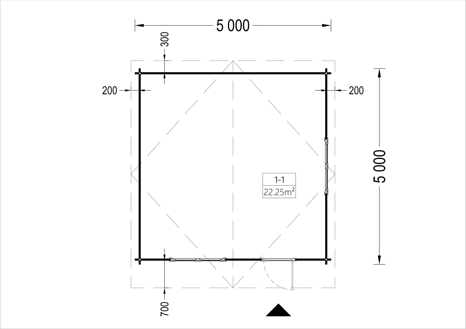
CASA REUS 5X5
CASA REUS 5X5
Precio habitual
€8.990,00 EUR
Precio habitual
Precio de oferta
€8.990,00 EUR
Precio unitario
/
por
Impuesto incluido.
El precio incluye: suelo, paredes, puertas, ventanas, techo, tégola para la cubierta del tejado, material necesario para dar una mano de protección exterior, herrajes, transporte (solo en península) e IVA.
Extras opcionales: tratamiento interior, contraventanas, contrapuertas, puertas y ventanas de PVC, persianas para puertas y ventanas de PVC, tejado de panel de sándwich, cámara de aire en cubierta (doble techo), aislamiento en suelo, extra de altura.
Características:
- Superficie: 25 m²
Share
