CASAS DE MADERA BÁLTICAS
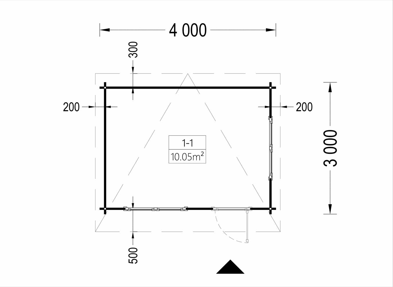
CASA REUS TP
CASA REUS TP
Preu habitual
€7.990,00 EUR
Preu habitual
Preu d'oferta
€7.990,00 EUR
Preu unitari
/
per
Impost inclòs.
El preu inclou : terra, parets, portes, finestres, sostre, tègola per a la coberta de la teulada, material necessari per donar una mà de protecció exterior, ferratges, transport (només a la península) i IVA.
Extres opcionals : tractament interior, porticons, contraportes, portes i finestres de PVC, persianes per a portes i finestres de PVC, teulada de panell de sandvitx, cambra d'aire a coberta (doble sostre), aïllament a terra, extra d'alçada.
Característiques:
-
12 m2
Share








